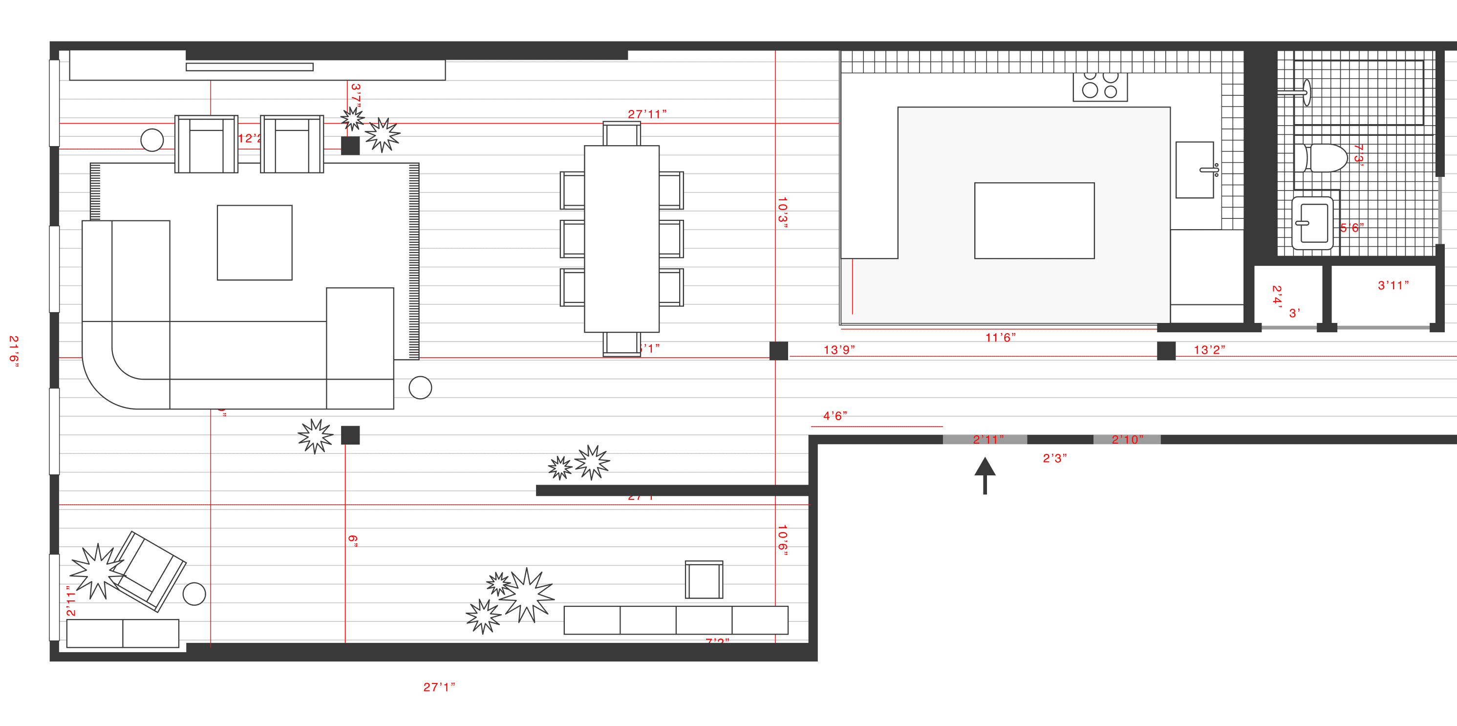
&Ende is a New York City based interior design studio — this is a stream of our current output: